Supermaresme. Av. Supermaresme 16Vendido

700m2
2100m2
5
1000 m2
150 m2
7+1
2+10

Magnífica casa de 700m² construidos sobre parcela de 2.100m² con unas vistas panorámicas extraordinarias de toda la costa de Barcelona y el parque natural.

Situada en Sant Andreu de Llavaneres, en la que es considerada una de las mejores urbanizaciones de Catalunya. Por su exclusividad, seguridad y servicios (pistas de tenis, padel, basket, fútbol, etc.).

A tan sólo 30 minutos del aeropuerto de Barcelona, la población tiene un magnífico puerto deportivo, un campo de golf y rodeado de naturaleza.

Perfecta para los amantes del mar, el bosque, la tranquilidad y la calidad de vida. Y todo ello, sin renunciar a la ciudad de Barcelona que está a escasos 30km.

Detalles Precio Galería Vídeos Planos PDF
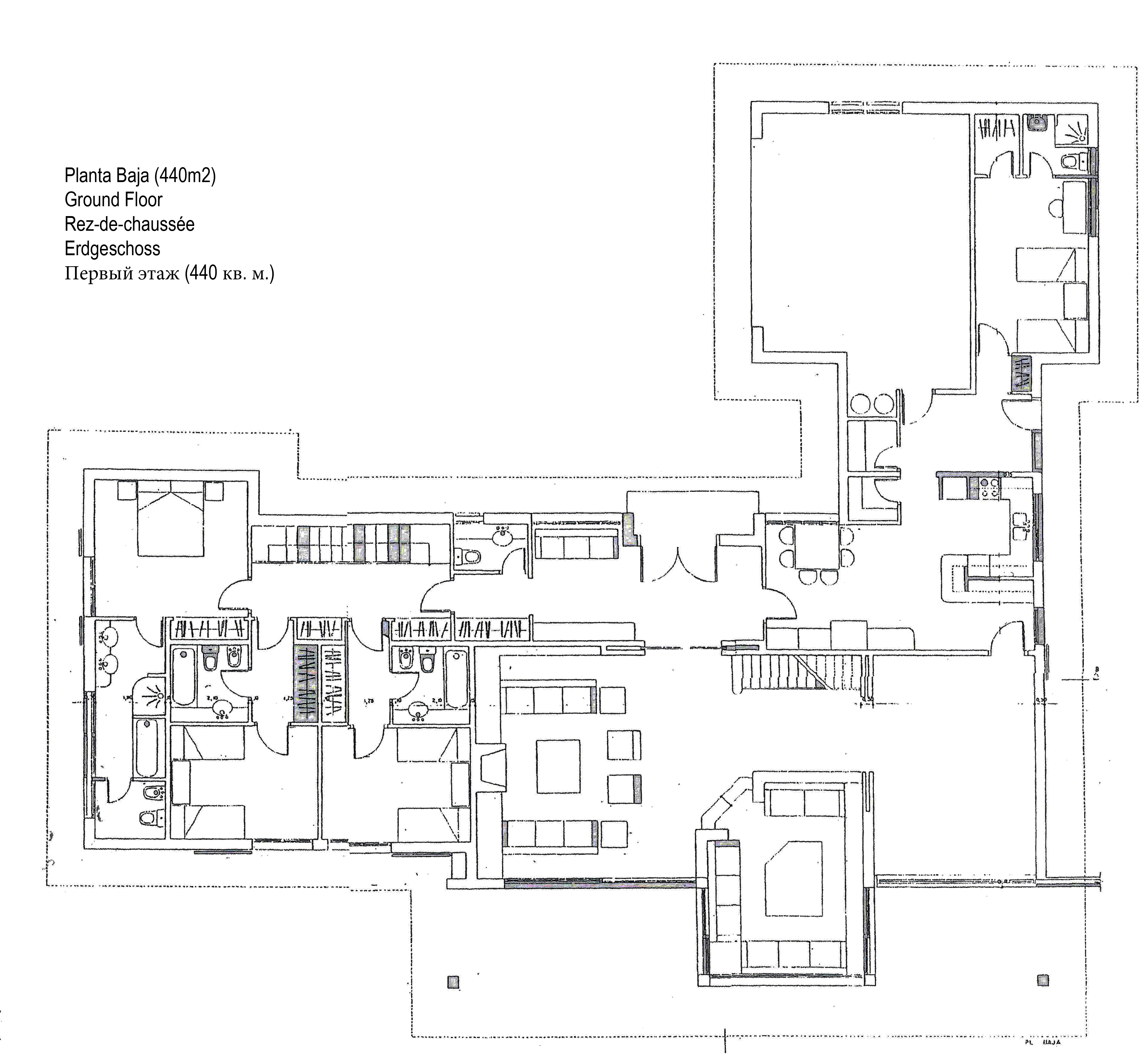
 Distribución
Planta 0
Vestíbulo de entrada
Comedor Principal para 20 comensales con salida directa a porche y jardín, con otra mesa para 10 comensales
Pequeño comedor para 6 comensales
Cocina industrial completamente equipada
Luminosa Lencería-Planchador con acceso a patio
Piscina de Cloración Salina
Vestuario piscina con baño y ducha
Patio con tendederos y amplios armarios de almacenaje
Apartamento Servicio (2 hab. + baño y cocina)
Parking interior para 2 coches y 10 exterior
2 casetas para perros
Sala de máquinas piscina con almacenaje
Taller de trabajo / sala de calderas
Planta 1
Suite principal con chimenea y acceso a terraza-solarium
Despacho-biblioteca
Baño completo con ducha y bañera
2 amplios vestidores
Más de 150m2 de golfas para almacenaje
Planta -1
Sala domótica multifuncional de Cine y Música
Aseo de cortesía con ducha
Bodega
Sala-trastero para almacenaje
Amplio acceso exterior a jardín y cascada de agua
 Jardín y Piscina
Mesa exterior con 8 sillas
Piscina exterior de cloración salina
Barbacoa
6 Tumbonas para tomar el sol
 Cocina
Horno
Microondas
Lavavajillas
Vajilla y utensilios
Cámara frigorífica industrial
Máquina de cubitos de hielo
Cuarto frío y de lavado
2 despensas
Campana de 1’5m y 45cm diámetro salida humos
 Equipamiento y Servicios
TV
TV por Satellite
HI-FI
Chimenea
Lavadora
Secadora
Descalcificador
Calefacción por gas-oil
2 Calderas nuevas Dedietrich
Reciente instalación de toma de gas natural
 Comunicaciones
Tren a 3 Km (estación Llavaneres)
Autobús a 1’5 Km
Aeropuerto de Barcelona a 30 Km
Autopista / Autovía a 2 Km / C-32
Playas a 3 Km: Llavaneres y Caldes d’Estrac
Precio VENTA
Vendido
Solicitar más información

 

 

Se han producido los siguientes errores: